プレサンス阿波座駅前の2LDKは、駅徒歩すぐの抜群の利便性と、都心近接ながら落ち着いた住環境が魅力の賃貸マンションです。ゆとりある2LDKの間取りは、ファミリーはもちろん在宅ワークにも最適な物件となります。Osaka Metro中央線の阿波座駅まで徒歩1分と交通機関のアクセスも良好です。高品質な設備仕様で毎日の暮らしが快適に整い、オートロックや防犯カメラなど安心のセキュリティも充実しています。周辺にはスーパー・飲食店・公園が揃い、生活利便性にも優れています。都会的でスマートな暮らしを叶える人気物件です。
「プレサンス阿波座駅前」について
「プレサンス阿波座駅前」の物件概要

| 所在地 | 大阪府大阪市西区立売堀 |
|---|---|
| 最寄駅 | Osaka Metro中央線/阿波座駅 徒歩1分 |
| 築年数 | 2019年2月 |
| 間取り | 2LDK |
| 構造 | 鉄筋コンクリート |
「プレサンス阿波座駅前」の室内詳細
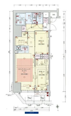
間取り

水道(公営) / ガス(都市) / 排水(下水) / バス専用共同(専用) / トイレ専用共同(専用) / バス・トイレ別 / コンロ種別(ガス) / コンロ口数(三口) / システムキッチン / 追い焚き / エアコン / 室内洗濯機置き場 / BSアンテナ / オートロック / エレベータ / バルコニー / フローリング / 宅配ボックス / 駐輪場 / internet対応(その他インターネット) / TVドアホン / 温水洗浄便座 / 浴室乾燥機 / ごみ出し24時間OK / 独立洗面台 / 防犯カメラ / インターネット利用料無料 / カード決済(初期費用) / クローゼット / シューズボックス / 二人入居可 / 敷地内ゴミ置き場
※設備をクリック頂くと設備で条件を絞ることが可能です
LDK/洋室

こちらはリビングのご紹介となります。採光性に優れた大きな窓が魅力で、明るく開放感のある空間が広がります。シンプルでレイアウトしやすい間取りのため、ダイニングとリビングのゾーニングがしやすく、家族の団欒から在宅ワークまで幅広いスタイルに対応しています。上質感あるフローリングやスタイリッシュな内装が都会的な雰囲気を演出し、快適な暮らしをサポートします。阿波座駅至近の利便性と心地よい住空間を両立した、使い勝手抜群のリビングです。
キッチン

こちらはキッチンのご紹介となります。料理がしやすい広めの調理スペースと収納力の高いシステムキッチンが魅力です。3口コンロやグリル付きで同時調理が快適に行え、家事の時短にもなります。シンプルで清潔感のあるデザインはインテリアにも馴染みやすく、毎日の料理時間をより楽しくしてくれます。リビングとの動線も良く、家族とのコミュニケーションが取りやすいのもポイントです。使い勝手と美しさを両立した、満足度の高いキッチン空間です。
バスルーム

こちらはバスルームのご紹介となります。ゆったりとした浴槽と清潔感あふれるデザインが魅力のリラックス空間です。追い焚き機能や浴室乾燥機を備えており、忙しい日でも快適に入浴できるほか、雨の日の洗濯にも便利です。滑りにくい床材やお手入れしやすいパネル仕様で、毎日の掃除も簡単です。落ち着いたカラーリングが上質な雰囲気を生み出し、1日の疲れを癒やすプライベートな時間をより豊かにしてくれます。使い勝手と快適性を両立した人気の設備です。
脱衣所

こちらは脱衣所のご紹介となります。ゆとりあるスペースと機能的な収納が魅力の快適空間です。洗面台は使いやすい大きさで、朝の身支度やスキンケアがスムーズに行える設計です。タオルや日用品をすっきり収納できる棚もあり、生活感を抑えた整った空間を保てます。バスルームとの動線が良く、家事や身支度の効率がアップする点もポイントです。清潔感のある明るい内装で、毎日の準備時間を快適にしてくれる心地よい脱衣所となるでしょう。
トイレ

こちらはトイレのご紹介となります。シンプルで清潔感のある内装が魅力の快適空間です。温水洗浄便座を備え、季節を問わず心地よく使用できるのがポイントです。手洗いスペースや収納も設けられており、トイレットペーパーや小物をすっきり整理でき、生活感を抑えたすっきりした空間を保てます。落ち着いたカラーのクロスが上質な雰囲気を演出し、毎日の使用が快適になる機能性も充実しています。衛生面と使いやすさを両立した居心地の良いトイレです。
収納

こちらは収納のご紹介となります。日常使いの物から季節物までしっかり収まる優れた収納力が魅力です。クローゼットは奥行きがあり、衣類をすっきり整理できるほか、棚やハンガーパイプで使いやすさも抜群です。各居室にも収納スペースが確保され、生活感を抑えたスマートな空間づくりが可能です。整理整頓がしやすい設計のため、荷物が多い方やファミリーにも安心していただけます。居住空間を広く使えて、毎日の暮らしがより快適になる充実した収納です。
「プレサンス阿波座駅前」のおすすめポイント
お部屋探しでお困りの方へ
LAKIA不動産〇〇店では、大阪市天王寺区・阿倍野区・東住吉区を中心に大阪市内の最新の賃貸情報(マンション・アパート・戸建)をお届けしています。
任せてよかったと納得、安心していただけるお部屋探しのサポートを提供させていただきます。
ご希望のお部屋がホームページに掲載されていない場合でもご安心ください。家主様のご都合でインターネットに掲載できないご希望エリアの物件をご紹介させていただきます。
「賃貸・売買で契約の事がわからない」「遠方で来店ができない」「初期費用を抑えたい」等のお悩みはお気軽にご相談ください。








